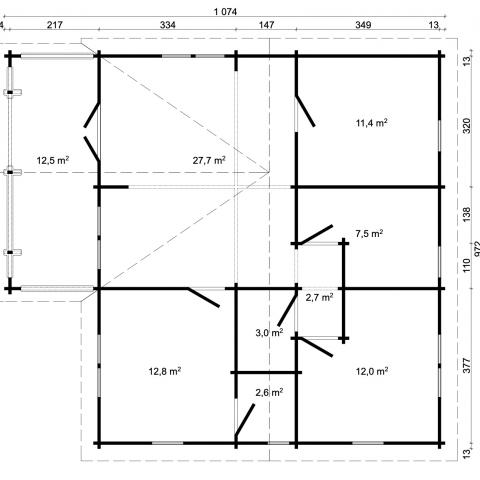
Chalet di legno massello in abete nordico naturale e certificato FSC. Lo chalet è dotato di 9 ampi vani interni, con 4 camere da letto, sala con spazio cucina e 2 bagni. Inoltre è fornito di una terrazza-loggiata ben integrata nel design classico dello chalet, che permette di organizzare pranzi e cene all'aperto e godersi anche le ore più calde (in quanto è provvisto di ampia copertura che permette un ottimo ricircolo di aria). Realizzato in abete nordico di 70mm di spessore massiccio (disponibile su richiesta anche da 58mm). Le pareti sono costruite con sistema BLOCKHOUSE con serramenti robusti ed isolanti per un utilizzo in tutte le stagioni. Infatti, lo chalet garantisce un ottimo isolamento termico anche nella stagione invernale, in quanto permette un riscaldamento veloce ed uniforme con un alto comfort climatico interno. All'interno degli ampi e luminosi vani è possibile installare a piacimento gli eventuali impianti elettrici e idraulici. Sia il tetto che il pavimento sono composti da assi di spessore 18mm. Il tetto, grazie alla abbondante inclinazione permette un ottimo defluire dell'acqua piovana e della neve.

Le pareti sono costruite con sistema BLOCKHOUSE in legno massello ed i serramenti sono robusti ed isolanti per un utilizzo in tutte le stagioni. Infatti, la casetta garantisce un ottimo isolamento termico anche nella stagione invernale (leggi maggiori informazioni a questa pagina: certificazione-energetica-della-casetta-legno), in quanto permette un riscaldamento veloce ed uniforme con un alto comfort climatico interno. Il pavimento in legno è incluso. Legno massello di abete nordico e proveniente da foreste certificate FSC (alberi a lenta crescita che garantiscono la minima presenza di nodi da ramo sulle assi, quindi la massima robustezza ed estetica nel tempo).  La casetta in legno è dotata di porta con vetri, serrature moderne e resistenti a cilindro (tipo serratura Yale).

Fronte-Lato Esterni
13,58 x 10,94
Fronte-Lato Interni
13,38 x 10,74
Altezza max
3.59m
Altezza min
2.39m
Metratura
127.60m²
Spessore parete
70.00mm
Codice prodotto
CASETTA-PO127
  • Struttura super-robusta
  • Due bagni
  • Legno certificato FSC
Prezzo
62.400€
Assi di fondamenta Trattate in autoclave
Assi di fondamenta trattate in autoclave
Assi essiccate con  funghicida, colore naturale
Assi essiccate con funghicida, colore naturale
Infissi in legno laminato
Infissi in legno laminato
Maniglie e meccanismi di alta qualità
Maniglie e meccanismi di alta qualità
Assi essiccate a  processo controllato
Assi essiccate a processo controllato
Apertura battente e basculante
Apertura battente e basculante
Rinforzi anti-tempesta
Rinforzi anti-tempesta
Soglia in alluminio
Soglia in alluminio
Legni certificati CE
Legni certificati CE
Legni certificati FSC
Legni certificati FSC

Caratteristiche principali

Chalet in legno di dimensioni abitative e progettato con sistema BLOCKHOUSE è in città, in campagna, mare o montagna. Inoltre, la progettazione con sistema BLOCKHOUSE permette costi di montaggio ridotti in quanto facile e veloce. 

Casette Italia ti consegna direttamente a casa e, ove il cliente richieda anche il montaggio in sito, consiglia di far eseguire il montaggio stesso alle nostre squadre di maestri-artigiani, esperti nel montaggio e nella manutenzione di nostri prodotti il legno.

Il kit della casetta prevede che tutte le assi perimetrali di appoggio delle pareti al terreno (assi di fondamenta) siano trattate in autoclave per essere completamente resistenti ad acqua, umidità, muffe e funghi. Inoltre tutte le assi delle pareti, del tetto, del pavimento sono pre-trattate in forno con processo controllato, hanno umidità inferiore al 16% e hanno subito un trattamento funghicida al colore naturale contro muffe o funghi. Quindi, il cliente necessita solo di scegliere il colore finale per tinteggiare le pareti esterne (si raccomanda un colorante ad impregnante ad acqua). Gli infissi sono in legno laminato per assicurare massima stabilità e durata a tutta la struttura.

Come ordinare

Un team tecnico-commerciale è a tua completa disposizione via email o telefono per comprendere i tuoi desideri di prodotto e requisiti tecnici. Potranno inviarti tutte le informazioni necessarie della casetta che preferisci, oppure  un progetto gratuito della tua casetta su-misura. Chiamaci o inviaci una email e sarai richiamato. Email: info@casette-italia.it - tel: 035.0667021

Dichiaro di aver letto l'informativa ex art. 13 dlg 196/03 e di accettare i termini in essa esposti. Acconsento al trattamento dei miei dati. (dettagli)

Optional & Servizi

Sogni la tua casetta in legno come piacevole estensione, solida e bella, della tua casa? Allora, se lo desideri, ti proponiamo anche il montaggio della casetta con una nostra squadra di maestri-artigiani locali. Richiedi "optional-1 montaggio in sito" in fase di ordine. Infatti, si noti che una casetta della misura 4x4m necessita di circa un giorno di lavoro di montaggio (per due persone). Sarete pienamente soddisfatti del risultato finale. Inoltre, i montatori sono a vistra disposizione per tinteggiare le pareti esterne con il prodotto protettivo ed il colore che preferisci, ciò per proteggere la casetta contro gli agenti atmosferici, funghi e muffe.

Desideri salvaguardare nel tempo il tetto della tua casetta in legno? Allora proteggilo con delle belle e robuste tegole canadesi in guaina ardesiata. Richiedi "optional-2 tegole canadesi" in fase di ordine, anch'esse verranno montate dalla nostra squadra di maestri-artigiani locali.

Vuoi vivere la tua casetta tutto l’anno? Allora beneficia del KIT-ISOLAMENTO-TETTO e del KIT-ISOLAMENTO-PAVIMENTO realizzati in diversi spessori e che ti permettono di goderti la casetta anche in inverno o nelle estati più calde. Richiedi "optional-3 kit isolamento” in fase di ordine.

Desideri personalizzare o progettare su-misura la tua casetta, ad esempio modificando le dimensioni, aggiungendo porte, finestre, pareti interne? Allora ti proponiamo di rendere più accogliente la tua nuova casetta con la progettazione personalizzata e su-misura dei nostri ingegneri. Inviaci un disegno, anche fatto a mano, con le misure che desideri e noi te la progettiamo gratuitamente.

 

Prodotto e montaggio

Se desideri maggiori informazioni tecniche riguardo il prodotto richiedi la scheda tecnica di prodotto che potrà essere utile anche al tuo tecnico di fiducia nel caso di autorizzazioni comunali. Le istruzioni di montaggio sono presenti in versione cartacea nella cassa. Presentano tutti i pezzi presenti ed il loro montaggio nella casetta. Se desideri l’installazione a regola d’arte da parte di professionisti allora richiedici il montaggio incluso. I con i nostri maestri-artigiani locali concorderanno con te la data di montaggio e potrai comodamente pagarli al completamento dell’installazione. Altrimenti con i 2 video-tutoriali al montaggio potrai essere autonomo. Infine, puoi scegliere di coprire la tua casetta con tegole canadesi in ardesiata e di uno dei seguenti colori. Quando fai l'ordine comunicaci il colore prescelto.

 

 

Trio tegole canadesi

 

Consegna e scarico

Consegna standard? Se il tuo indirizzo di consegna è standard il nostro moderno camion con muletto-a-bordo potrà consegnarti la casetta facilmente anche posizionandola all'interno del tuo giardino o proprietà se l’accesso lo consente.

Consegna in aree poco accessibili? Il nostro team di logistica ama il problem-solving. Quindi se devi effettuare la consegna aree poco accessibili come montagna, parchi naturali ecc. puoi informarli sul luogo preciso. Organizzeremo una soluzione di trasporto speciale attraverso furgone, camion-con-gru, nave o elicottero. Risolviamo qualsiasi problema, mettici alla prova!

Scarico professionale e stoccaggio ottimale: scaricheremo la tua casetta con muletto o transpallet in base alle tue necessità ed al tuo sito. Tutti i prodotti sono imballati in casse robuste e anti-pioggia. Il tempo di consegna è funzione del modello scelto, generalmente 4/6 settimane in media. Il nostro team di logistica organizza per te anche lo “scarico manuale” se gli accessi alla tua proprietà sono piccoli per muletto o transpallet.

Ritiro in autonomia: è possibile il ritiro diretto da parte dell’acquirente presso la nostra logistica, a questo proposito vi consigliamo di fare attenzione alle misure ed al peso dell'imballaggio riportate nella scheda prodotto per valutare se il vostro mezzo è idoneo.

Garanzia e supporto

GARANZIA 100% - SODDISFATTI O RIMBORSATI

Solo Casette Italia propone questa garanzia perchè solo noi siamo specializzati nella progettazione, produzione e montaggio delle casette a sistema blockhouse. Nessun altro ha sviluppato abbastanza esperienza da rischiare di garantirti il risultato finale del prodotto montato. Noi siamo sicuri dei nostri legni certificati-FSC, dei nostri ingegneri che progettano con passione e precisione, delle nostre linee produttive scandinave a processo controllato, dei nostri professionisti locali che installano e quindi ti garantiamo il risultato. La garanzia per tutti i nostri prodotti è 10 anni.

Servizio Clienti disponibile sia per i consigli pre-vendita che per il supporto al montaggio. Contattaci via email, telefono o WhatsApp. Se hai un dubbio su come montare la tua casa, puoi contattarci sempre e ti assisteremo a trovare la miglior soluzione.

Richiedi un sopralluogo

Se desideri un tecnico che visioni il tuo sito per valutare al meglio allora verremo da te per consigli sul prodotto e sull'installazione. Il costo standard del sopralluogo varia da €100-€300 (ti verranno restituiti al momento dell'ordine). Contattaci via email per richiederlo.

Pagamento

Per conferma l’ordine richiediamo un acconto tra il 30% ed il 50% a secondo del prodotto (i prodotti su misura o personalizzati richiedono un acconto del 50%). Il saldo invece lo paghi solo alla consegna della casetta.

In ogni caso le nostre “condizioni di vendita” ti permettono di annullare l’ordine e quindi di ricevere sempre l’intero anticipo versato. La serietà e professionalità di Casette Italia sono una garanzia anche su questi aspetti: leggi le recensioni sia su TRUSTPILOT che su FACEBOOK.

Benefici e recensioni

Solo legno di abete nordico a lenta crescita: questo tipo di legno, coltivato in foreste certificate FSC, è più resistente a muffa e insetti. Non scendiamo a compromessi con la qualità.

Doppi vetri a partire da 44mm: per tutti i modelli a spessore uguale o maggiore di 44mm offriamo porte e finestre con doppi vetri 4+9+4 oppure 4+18+4 ad alto isolamento (trasmittanza termica U tra 2,9 e 1,7 W/m2K).

Pavimento incluso: tutte le nostre casette sono dotate di pavimento. Solo i garage lo hanno come optional su richiesta.

Ferramenta inclusa: il sistema blockhouse non richiede molta ferramenta grazi agli incastri legno-legno, ma quella necessarie è inclusa.

Rinforzi anti-tempesta: Tutte le casette hanno rinforzi anti-tempesta in legno oppure barre filettate invisibili all’interno delle pareti. Essi consolidano la struttura contro tempeste e sisma.

Recensioni dai clienti: visiona cosa pensano di noi i clienti sia su TRUSTPILOT, che su FACEBOOK.

Informazioni su certificazione strutturale

Su richiesta del cliente possiamo fornire il servizio di relazione strutturale e antisismica. Inoltre, anche se le nostre strutture standard sono robuste e resistenti grazie al sistema blockhouse ed alle travi del tetto sovradimensionate va considerato che su alcune zone d’Italia prescrivono la resistenza a sisma, venti elevati e carichi neve particolari. Per alcune zone del territorio nazionale, come ad esempio quelle ad altitudini elevate, potrebbero essere necessari dei rinforzi alla struttura base.

Mettiamo a disposizione un ingegnere specializzato che su richiesta redige i calcoli e le relazioni necessarie in base alle caratteristiche specifiche del sito come altitudine, zona sismica, vento, terreno, ecc.

Dichiaro di aver letto l'informativa ex art. 13 dlg 196/03 e di accettare i termini in essa esposti. Acconsento al trattamento dei miei dati. (dettagli)

Perché scegliere Casette Italia

Alta qualità

Legni selezionati di abete bianco nordico a lenta crescita con minima densità di nodi, legni certificati FSC, ingegneri del BlockHouse e processi produttivi controllati creano prodotti di altissima qualità.

Garanzia 10y

Tutte le casette, chalet, case abitabili e garage, sia standard che su misura, sono prodotti garantiti 10 anni contro i difetti di fabbricazione (standard EU).

Garanzia 100% soddisfatti o rimborsati

Solo Casette Italia propone questa garanzia perchè solo noi siamo specializzati nella progettazione, produzione e montaggio delle casette a sistema blockhouse.

Supporto al montaggio

Solo Casette Italia propone questa garanzia perchè solo noi siamo specializzati nella progettazione, produzione e montaggio delle casette a sistema blockhouse.

Certificazione strutturale

Su richiesto dal cliente, forniamo il servizio di calcolo e redazione della Relazione Strutturale e della Relazione Antisismica per le autorizzazioni comunali.

Cosa può fare per te Casette Italia

Sogni una casetta da giardino, un garage o uno chalet di alta qualità, magari coibentato per viverlo molti mesi all’anno e di qualità superiore per lasciare amici e parenti a bocca aperta? Possiamo realizzare il tuo sogno sia con i nostri prodotti standard oppure con personalizzando su misura il tuo progetto. Lo facciamo da più di 10 anni e puoi leggere le recensioni dei nostri clienti sia su Facebook che si TrustPilot.

Utilizziamo solo abete nordico bianco a lenta crescita, certificato FSC e a bassa densità di nodi. Progettiamo i nostri tetti in modo sovradimensionato e rinforzato, trattiamo tutte le assi di fondamenta in autoclave e utilizziamo doppi-vetri per gli spessori superiori ai 44mm. Possiamo offrirti un servizio completo fino all’installazione e manutenzione ordinaria della tua casetta.

Possiamo farti toccare con mano le nostre realizzazioni perché alcuni clienti acconsentono alla visione delle loro installazioni: vedi la sezione “le nostre show-room” per trovare quella più vicina a te.

Commenti dei clienti

Aggiungi un commento

Inviando questo commento accetti la Privacy Policy Casette Italia che è GDPR-compliant e quindi acconsenti affinchè i tuoi dati siano siano salvati sul server per rendere disponibile il servizio di commenti. Potrai sempre cancellare tali dati inviando una email a gdpr@casette-italia.it.